James Montana AIA James Montana AIA
CALL US 203.539.6656

The
Light House
Voc Ed

Project Information



About this project:


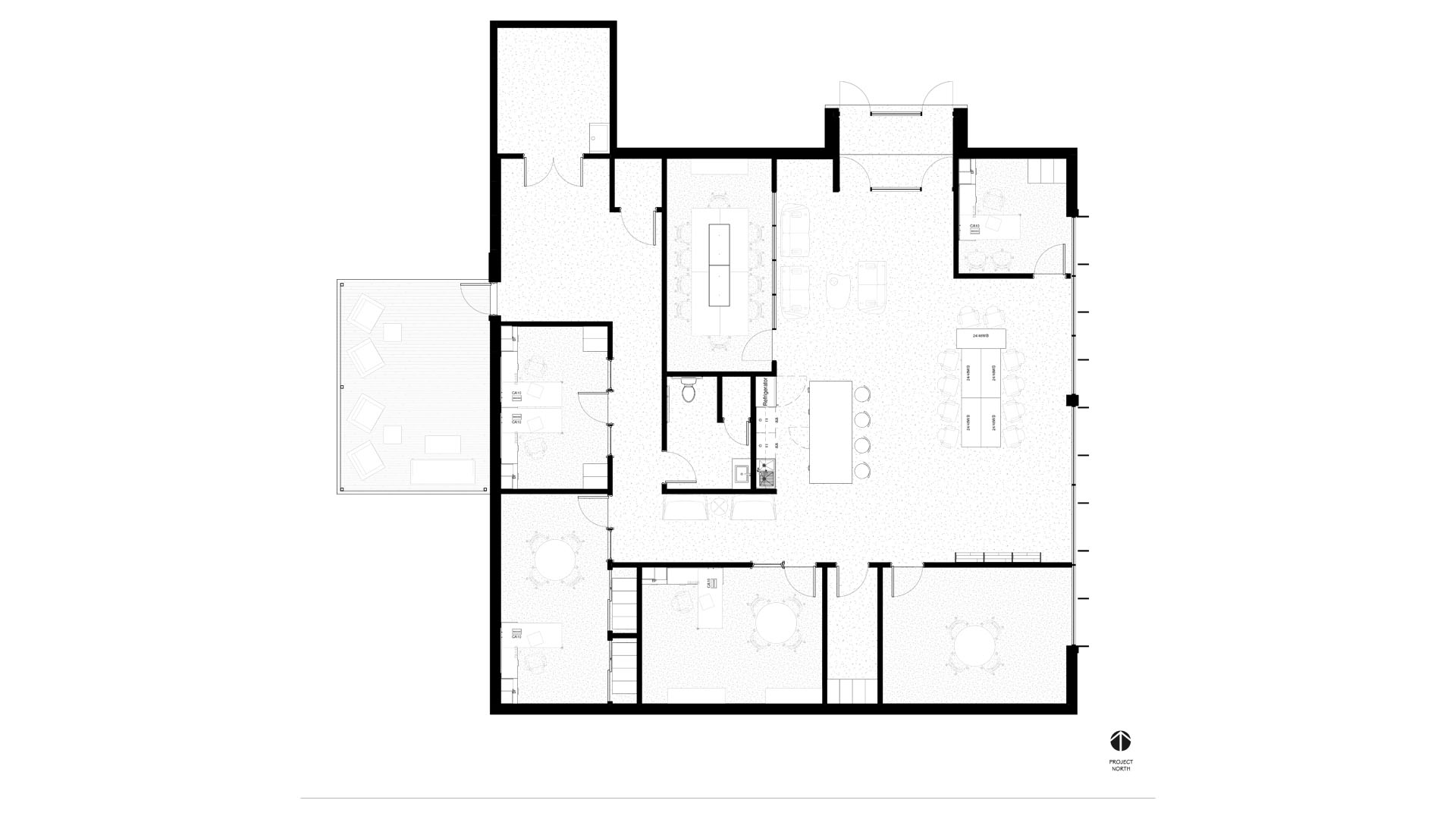
The Light House is a non-profit vocational education dedicated to helping those with many different types of disabilities succeed in a modern world. We were honored to be selected to help them design a new voc ed center in New London, CT


To help ensure that the space was both modern and welcoming, we created a series of spaces for different types of activity. From a quiet room to a bustling communal work area, to a relaxed lounge and kitchen, each space is centered around the different ways in which people can work and learn. Assistive technology was implemented to create an experience that was equitable and exciting. Back of house administration was created to be warm and inviting to all.