James Montana Custom Home Design James Montana Custom Home Design
CALL US 203.903.7857

Niantic
Beach House
Renovation

Exterior rendering of a Beach house in Niantic, Connecticut

Project Information



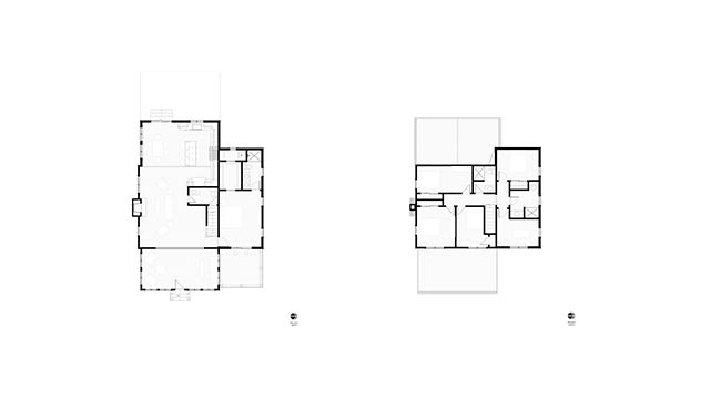
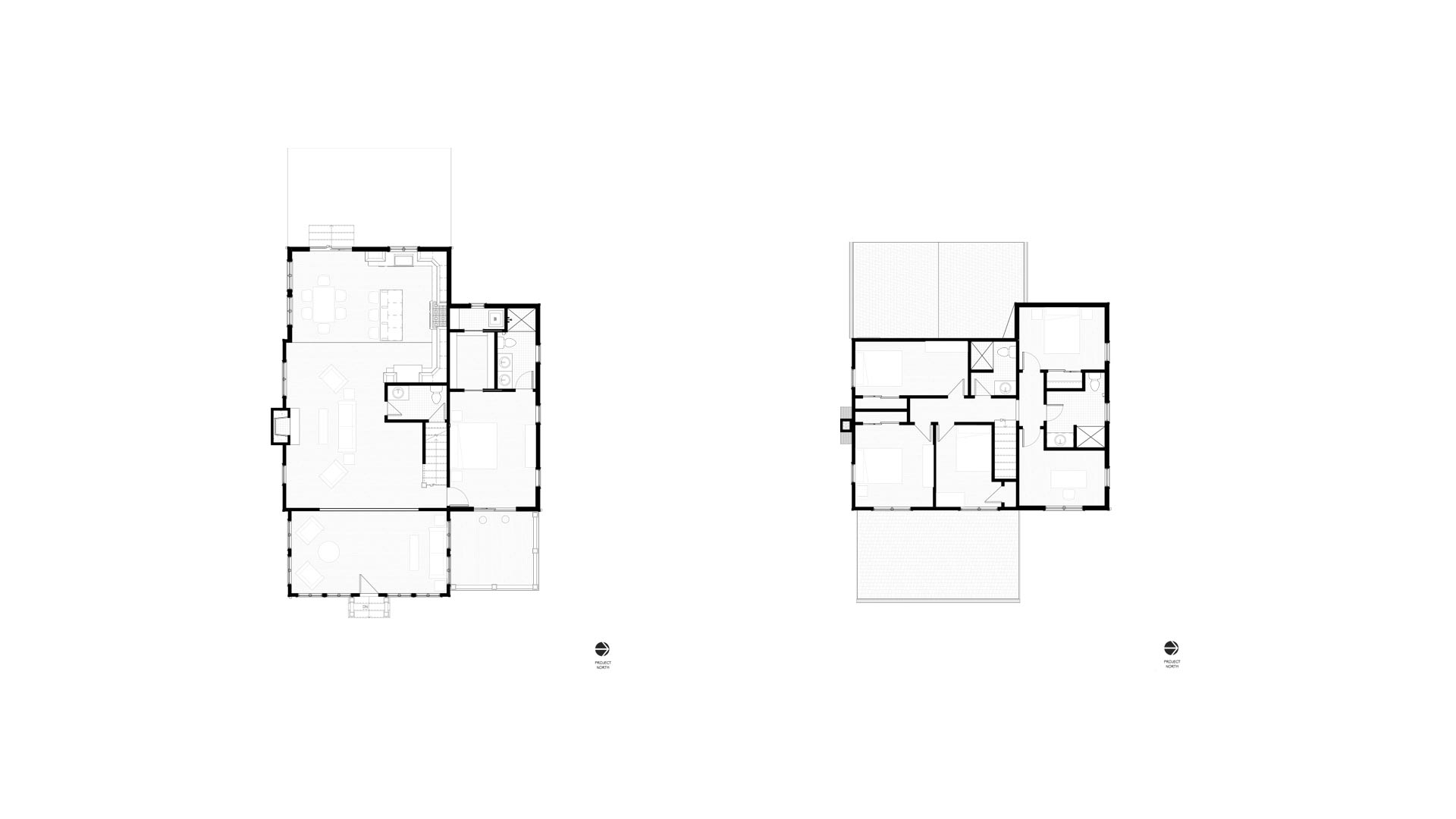
About this project:


This project had a very unique situation. The contractor and client had engaged the services of another architect, who in addition to disregarding the clients' needs, created a design that structurally deficient and non-code compliant. Our mission was simple. Produce a safe, attractive renovation. The only problem? We had two weeks to complete the project, starting from scratch.

" It took all hands on deck, but our clients were satisfied. "
- James Montana

It took all hands on deck, but our clients were satisfied, and we were able to get a building permit in record time, in a town known for their attention to detail. When working with Lance, frequent communication was key. Due to workload, our engineer had to be brought on at the very end, so a lot of communication had to be done in the interim in order to ensure that the changes made to this house were safe, and cost effective, while still maintaining and enchancing the beach town aesthetic of this bungalow. We ultimately decided to reclad the siding with cedar shakes, and add muntins to the window, to complete the new england beach feel. The result? A beautiful renovation in record time.