James Montana Custom Home Design James Montana Custom Home Design
CALL US 203.539.6656

New Haven
Microliving
Apartments

Exterior of a MicroApartment complex in New Haven, Connecticut

Project Information



About this project:


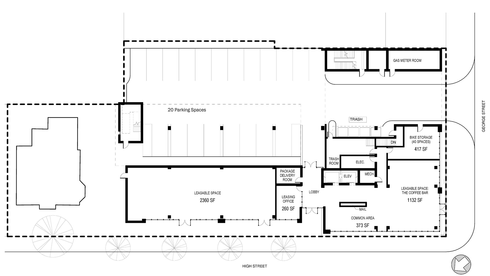
New York based commercial real estate developer, Mod Equities was looking to expand their brand into New Haven, CT. Their concept was to bring the tiny living phenomenon famous in Europe and Japan to the East Coast, and we were excited to help them realize that goal.

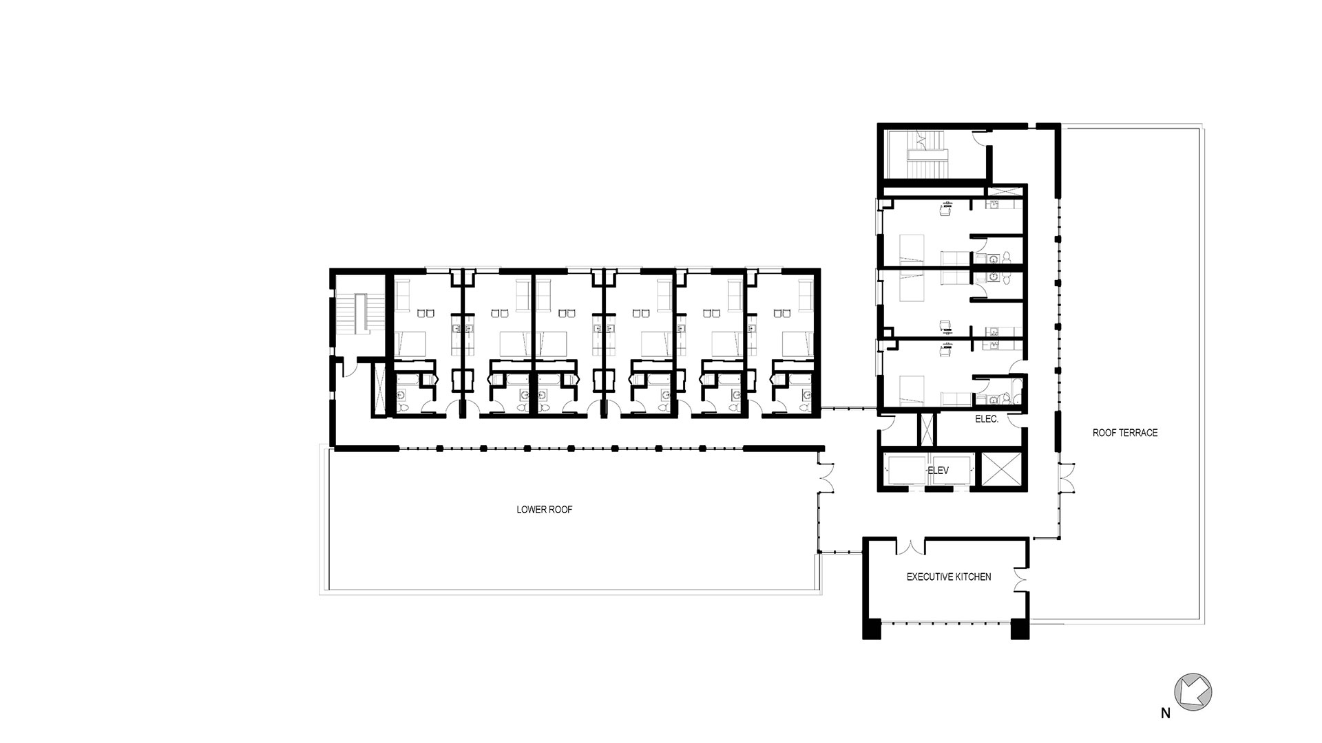
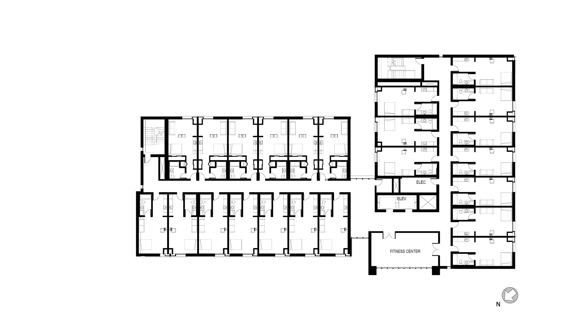
Comfortable, yet compact units were developed with Yale graduate students and faculty in mind, providing simple, modern living to short term residents. Each floor, however, holds a unique community space for inhabitants to mix, mingle, and sample big time living. The roof sports an open lounge with outdoor seating. The first floor features a coffee house with comfortable classics.

" Comfortable, yet compact. "
- James Montana

In order to achieve this goal, a parti system was used to split units into the optimal lighting, wind, and view orientation. Each floor had their own neighborhoos, brought together by a central amenity space. Each floor had a different amenity in order encourage mingling and cooperation. Eventually the concept was evolved further, but the pure design has been profiled for purposes of illustration.