James Montana AIA James Montana AIA
CALL US 203.539.6656

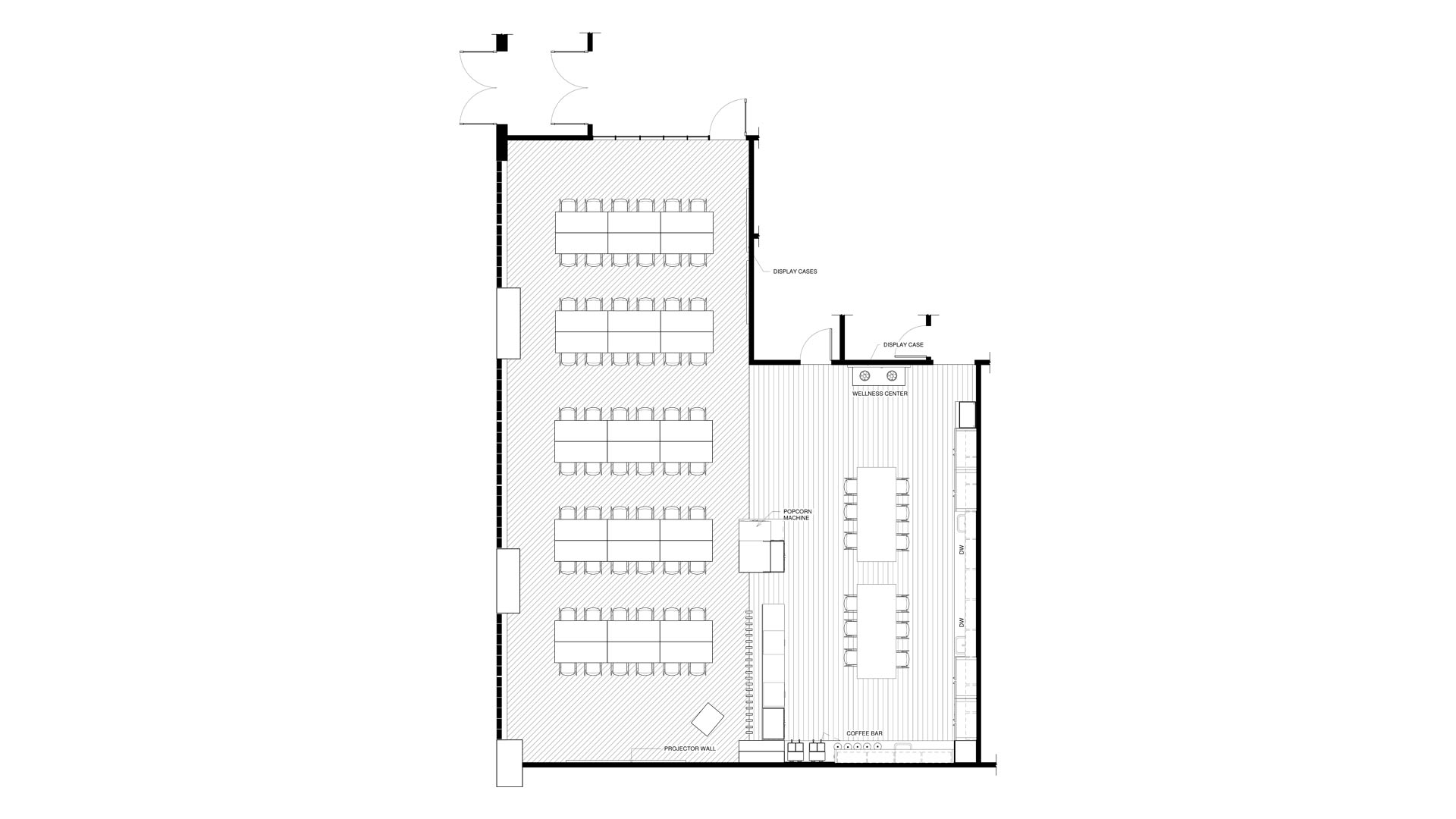
Insurity
Common
Area

Interior Rendering of Insurity's Common Area in Connecticut

Project Information



About this project:


Insurity wanted a kitchen and meeting space that was flexible, open and multi-functional while maintaining a sense of their company brand.