James Montana AIA James Montana AIA
CALL US 203.539.6656

Chappaqua
Apartment
Renovation

Project Information



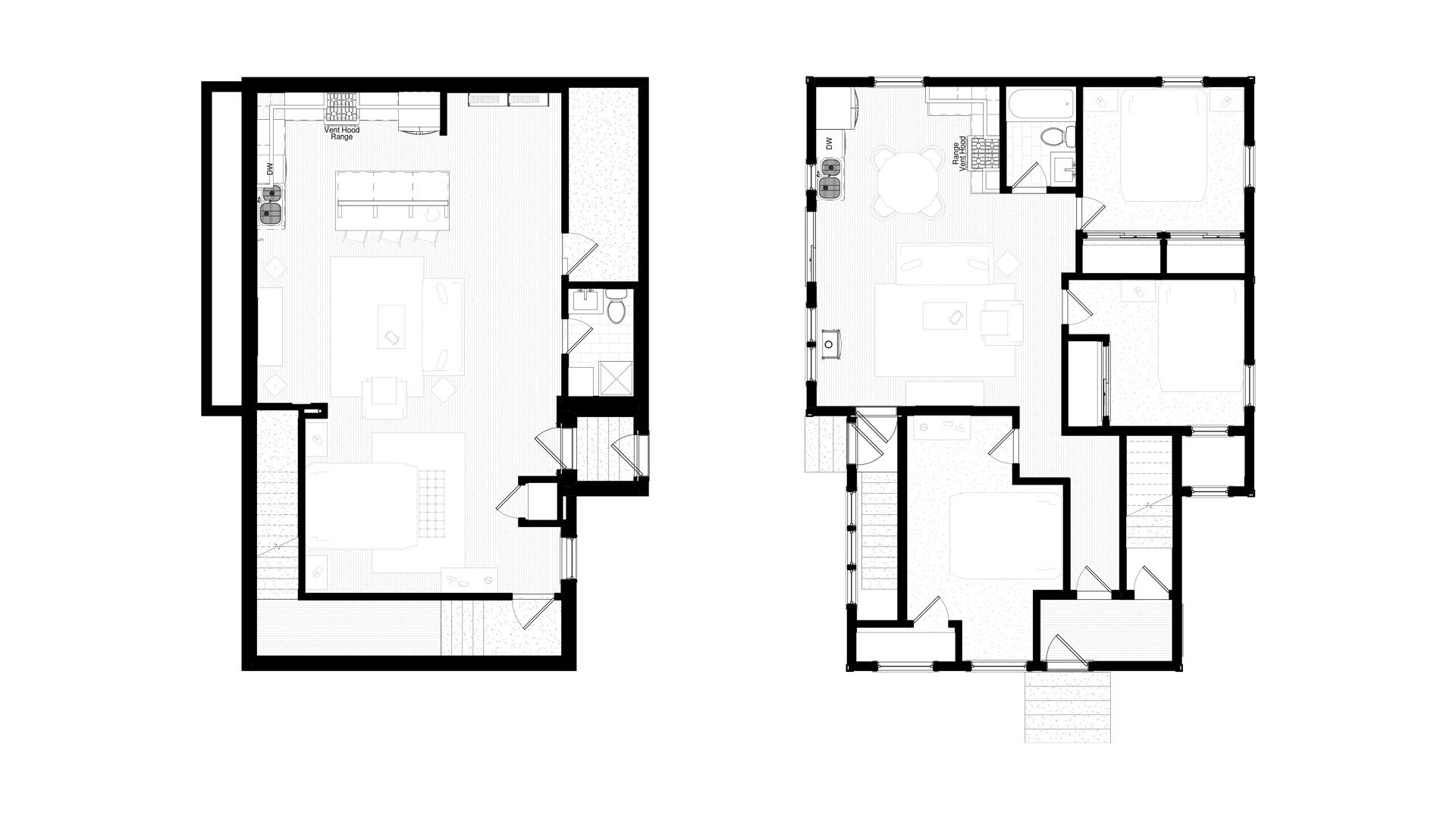
About this project:


Working with a skilled construction company is always critical when rehabilitating a damaged building. Historical buildings with Northeast charm require an attention to detail, that is at once respectful of the original structure, while improving it for modern living.


We were excited to partner again in order to restore people's homes, creating both a family sized unit and a modern studio downstairs.